Manzanita
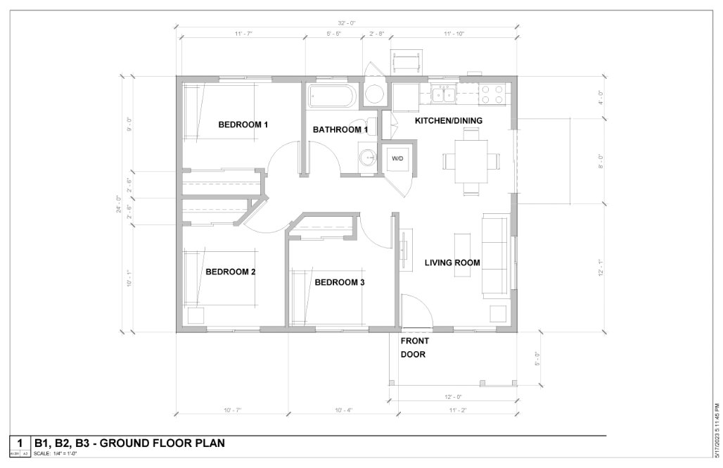
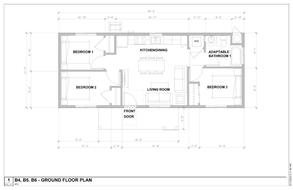
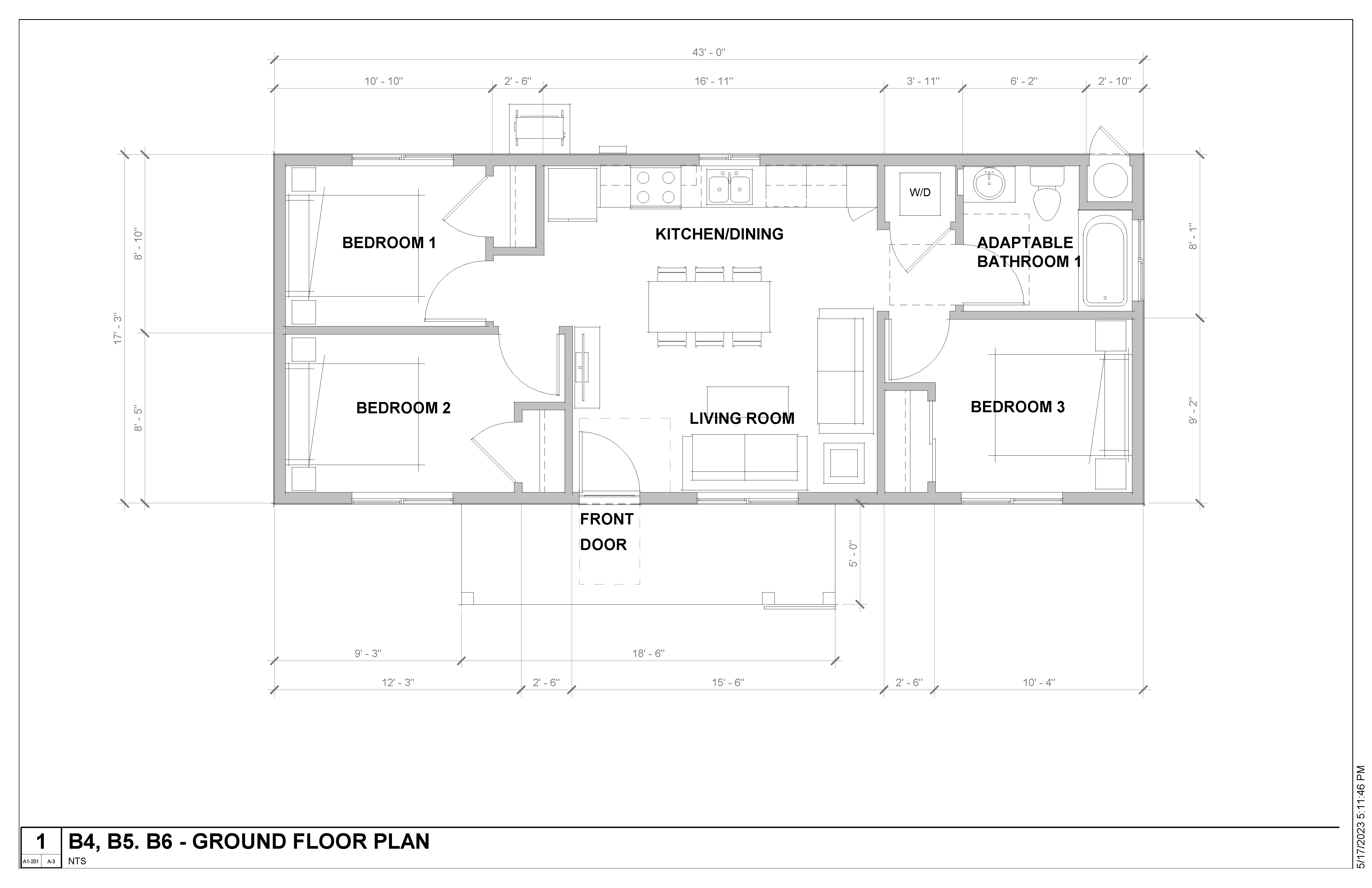
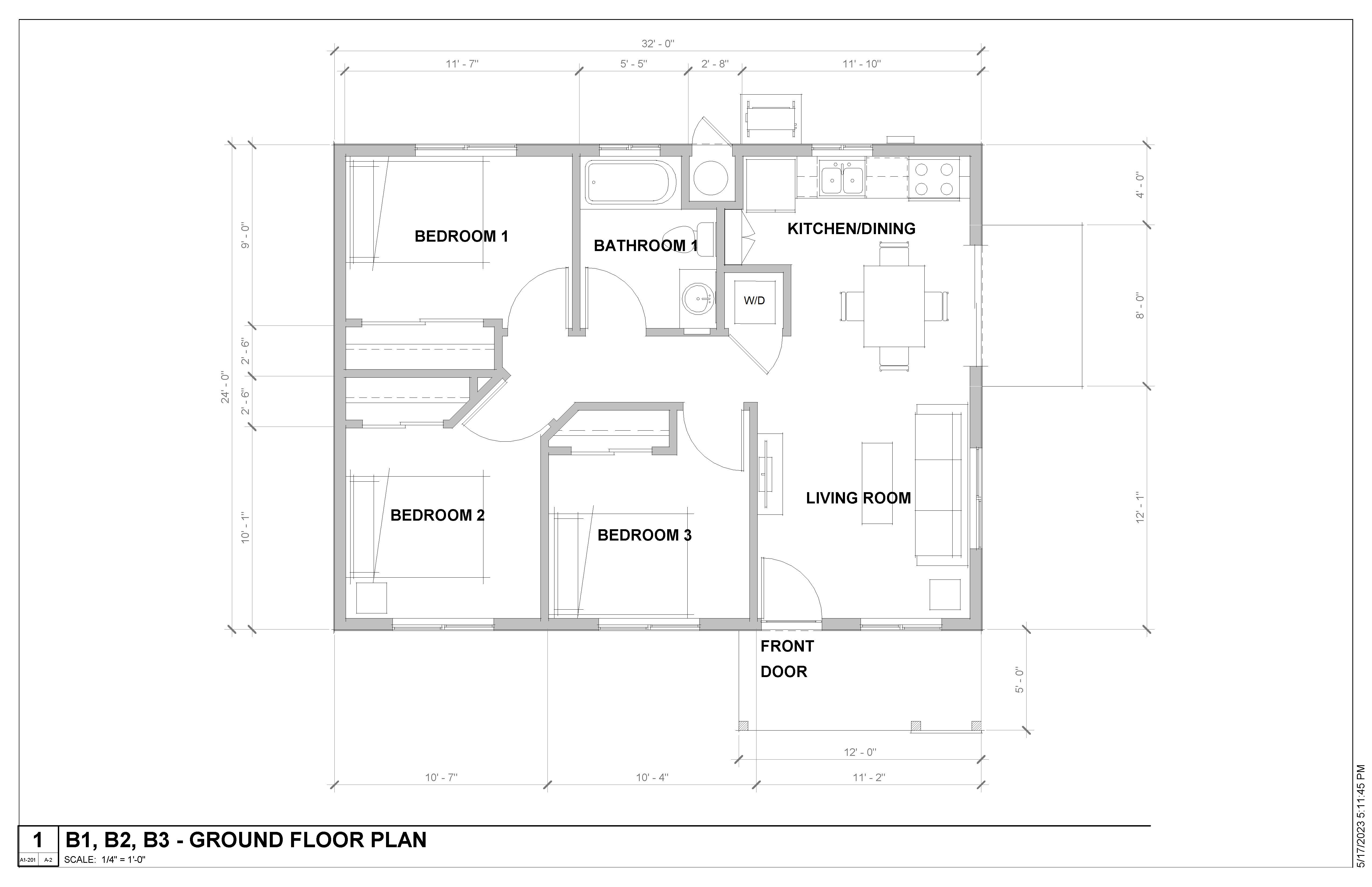
Manzanita | Three Bedroom | Standard (768 sqft) and Narrow (742 sqft) Options
Perspective Views (Standard)
The Mid-Cent

Clean lines and streamlined forms with limited embellishment.
Floorplan Example (Standard)
Perspective Views (Narrow)
The Mid-Cent Narrow
.jpg)
Clean lines and streamlined forms with limited embellishment.
The Farm Narrow
.jpg)
Cozy and rustic charm with quaint architectural features.
Floorplan Example (Narrow)



.jpg)
